
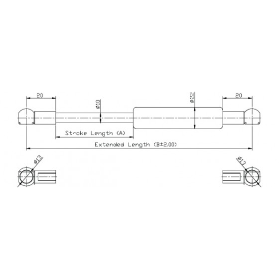
單位: mm
9.8 牛頓(N)=1公斤(KG)=2.2磅(LBS)
下列新增德國大廠STABILUS規格尺寸:
(1).jpg)
SUPERSEN 自由型氣壓棒,氮氣缸(Gas Spring-Free Type) 具有支撐及推力功能,但不具定位功能。 內部填充適當壓力的氮氣,使得氣壓棒在壓縮時產生反力,這個反力可用來支撐或抵銷負載在氣壓棒上的重物 ,並利用缸體內部油量和活塞孔大小產生阻尼功效,促使氣壓棒(氮氣缸)於伸展或壓縮過程中,更能確保缸體平滑移動。一般建議安裝氣壓棒(氮氣缸)時軸心向下,可使氮氣缸撐開至末段時具有緩衝效果,並能保護設計之機構。因此SUPERSEN 自由型氣壓棒(氮氣缸)常應用於自動化設備掀門,掀蓋,特別是板金工業箱體掀門,汽車引擎蓋及尾門掀起,傢俱廚櫃,電子設備掀門,產業機械,工具機掀門等。
琥盛為方便客戶選用適用於該係列氣壓棒(氮氣缸)之兩端配件及螺栓,共開發出百種以上之產品供客戶輕易選用,客戶亦可自行點選網頁配件區及螺栓區參考設計。 我司在此建議使用國際通用配件及螺栓料號如下:
球型螺栓類: SW14, SW15, SW17
球型配件類: BKT-04-I, BKT-04-O, BKT-11A, BKT-12A, BKT-22, BKT-22A, BKT-22-I, BKT-22-O
栓型配件類: BKT-11, BKT-12, BKT-13, BKT-B11, BKT-B12
備註:
1. SUPERSEN 自由型氮氣缸氣壓棒 1022 系列係指軸心直徑為10mm, 外管直徑為22mm 的氮氣缸,其壓力介質為氮氣(N2), 阻 尼介質為液壓油(OIL),適 用溫度為 - 20℃~+80℃,允許長度公差範圍為±2mm。
2. SUPERSEN 自由型氣壓棒(氮氣缸) 規格品其軸心表面處理:氮化軸心/ 外管表面處理: 黑色烤漆 (其它顏色需求亦可製作)
3. SUPERSEN 自由型氣壓棒(氮氣缸)所使用的原料均為台灣生產製造,其來料均通過氮氣缸氣壓棒外管及活塞桿 SGS 鹽霧測 試, SGS ROHS測試, SGS 拉力測試等多項品質測試,客戶如需更多氣壓棒(氮氣缸)相關認證報告可依需求自行在我司網站查詢下載。
4. 請客戶於詢價時,告知氮氣缸所需之壓力F1(N) , (9.8 牛頓(N)=1公斤(KG)=2.2磅(LBS) / 長度單位(mm)
5. 如需更多產品資訊,歡迎電洽聯絡我司業務部或參閱網頁 http://www.supersen.com.tw




